工程现场安装磁控手柄和轨道,应由内置百叶中空玻璃制造企业独立完成的必要性
1、工程现场安装手柄和轨道应由百叶玻璃制造企业独立安装完成
(1)内置百叶中空玻璃腔体内的“磁控手柄”,在安装人员不了解生产企业磁极原理作业书的情况下,无法与玻璃外部的磁控手柄准确对应安装。
一旦出现内、外磁控手柄错位安装会导致,磁铁形成反作用力,而出现内置百叶玻璃产品大批量脱磁、脱落现象,如磁块数量内外不等、大小不一,磁极和磁力会严重衰减,也会导致百叶玻璃批量脱磁、升降功能失效的严重后果。再因工程现场安装的百叶玻璃,由于内磁控器隐藏在玻璃腔体内框中不能肉眼辨识,腔体“内操控器”磁体的具体数量、规格、磁极强弱、磁铁排序等,在安装人员不了解生产企业内部的“用磁工艺作业书”时,必然导致出现内、外操控手柄安装混乱,出错率通常高达60%以上。
(2)百叶玻璃是否能够正常使用头部因素,取决于外磁控手柄与百叶中空玻璃及内部传动系统的三种定位方式,只有内置百叶中空玻璃生产企业的专业人员按照生产作业书的工艺要求,方能现场安装和调试,确保产品的合格率达到99.9%以上。
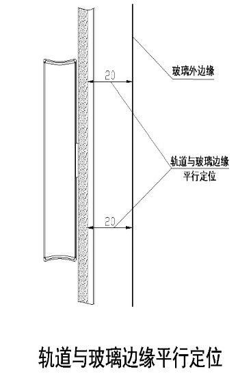
例:①内、外磁控手柄按磁区,磁极生产工艺要求定位安装;②外操控器升降行程与玻璃内操控器准确安装定位;③轨道与玻璃边缘平行,定位安装。(如图)



若工程现场安装外磁控手柄及轨道的工作是由百叶玻璃制造企业以外的非专业人员混乱安装,无法保证上述三种定位安装的准确率和合格率,这也是导致百叶中空玻璃批量脱磁和不能正常使用的主要原因。
2、拖延和推诿安装手柄和轨道的百叶玻璃制造企业有掩盖产品先天的质量缺陷的嫌疑
一些不良商家为避开门窗企业和开发商,对工程现场百叶中空玻璃的质量检查,而恶意拖延和推诿安装磁控手柄和轨道直至工程验收才不紧不慢的进行逐片安装。这种未经检查和调试的百叶中空玻璃,几乎是不能保证产品不出现质量问题,当工程交付后,批量客诉和群诉,给开发商和门窗施工企业带来难以挽回的经济和名誉损失。
3、规避法律责任

百叶中空玻璃制造企业通过拖延安装磁控手柄和轨道的方式,以半成品冒充成品出售给购方,企图逃避质量验收,甚至将不合格产品的后续质量问题转嫁给购方企业。这种行为违规,违法。
综上所述,为保障门窗企业和开发商的合法权益及楼盘的美誉度不受侵害,出厂后的内置百叶中空玻璃必须由百叶玻璃制造企业现场安装,独立完成所有磁控手柄和轨道的调试工作,确保合格率达到100%,并应接受购方对产品质量的逐片检查和验收,确保开发商通过抽检及时更换不合格产品,即保证向业主顺利交付,又杜绝不良百叶玻璃制造企业以次充好、鱼目混珠的情况发生!
相关知识
工程现场安装磁控手柄和轨道的工作
KECENT可圣照明选灯攻略:如何买到更好的磁吸轨道灯?
京东灯光设计联盟全面升级 新增深度设计套餐、上线磁吸轨道灯安装服务
三强照明 打造高端智能磁吸轨道灯
光影百变,创意无界丨MT60磁吸系统新品上市
锋磁天下:以专利,为经销商保驾护航!
可诗照明 | 轨道灯家居设计应用
海尔冰箱磁控冷鲜科技实现10日鲜创纪录
磁控冷鲜科技!海尔冰箱又发明颠覆性保鲜技术
德爱威工程品质管控一期培训圆满成功