
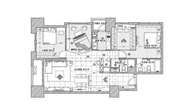
为了向自己的白富美女友求婚,李先生可是下了血本装修这套婚房。女友是隔壁学校的钢琴老师,长得非常漂亮有气质。在装修上也以女友的爱好考虑了很多。从玄关处的清新色的墙面,在上面做了一个简单的照片墙,很文艺。

从玄关处进入,一个小小的桌子可以作为下午茶的休息区域,墙面背景上还做了黑色的置物架设计,上面摆满了书本,五线谱的音符造型,透露出一股文艺气息。

客厅的设计整体色调非常柔和,米色的沙发和白色的沙发背景墙墙砖都给人一种非常温柔的感觉。电视背景墙选用了小清新的蓝的乳胶漆和玄关处墙面的背景一致,也给整个家居空间点缀了色彩感。


一眼望去,整体空间通透明亮,居住在这样的空间也会很舒服。

合理利用空间设计储物柜,非常舒适。

还特意为女友设计了一个钢琴区域,文艺极了。

主卧的颜色比较轻柔,给人一种淡淡的舒适感。

次卧选择了绿色作为墙面颜色,给人营造一种活泼的感觉。

