由金堂奖、中居设计、新浪家居联合东鹏整装卫浴发起的“2025卓越设计青年”,是设计业界最具传播价值的年度先锋荣誉,由金堂奖、中居设计与新浪家居联名认证。本期荣膺“2025卓越设计青年”称号的是北京市业之峰装饰高级设计师——王博。

在空间与生活的交响曲中,王博以设计为笔,勾勒出当代人居的诗意栖居。作为2023-2024业之峰年度千万产值设计师、中国艾特奖得主,他始终以家庭共生哲学为核心,通过精准的洞察,以“阶梯式设计思维”化解代际冲突:既用防噪技术筑起隐私边界,又以开放式布局编织互动纽带,在矛盾中孵化出一个家的和谐韵律。当传统伦理与时代需求碰撞,他选择用科技赋能人文,让每一寸空间都成为情感共振的载体。
—新浪家居对话王博—
【新浪家居】:首先恭喜您荣获金堂奖、中居设计、新浪家居共同认证的 2025年卓越设计青年荣誉。如今设计行业人才辈出,您认为自己脱颖而出的竞争优势是什么呢?
【王博】:首先非常感谢认可!在设计行业这个充满挑战与机遇的领域中,我始终关注不同代人的生活方式与需求变化,通过细致入微的沟通与观察,精准把握他们对空间、功能、美学等方面的期望。这种深度理解使我能够设计出既符合业主个性,又能满足其家庭成员多样化需求的作品。
【新浪家居】:从刚性需求到情感诉求,您认为居住空间设计正在经历怎样的价值转向?这种转变对设计师的能力提出了哪些新要求?
【王博】:过去主要关注空间的功能性,现在除了实用性,人们开始追求空间的情绪价值,甚至是精神层面的情感寄托。这种转变一方面要求设计师要对业主有更多了解和共情,这需要更多的心力和更强的沟通能力;另一方面设计师也要具备把业主的理想之家落地出来的能力,这需要设计师保持敏锐的行业触觉,与时俱进,掌握新技术和新材料的应用,以适应不断变化的市场需求和业主的多样化需求。
【新浪家居】:居住矛盾日益凸显,设计师如何在空间设计上缓解传统家庭伦理与现代生活方式的冲突?
【王博】:让不同年龄的人既能保留自己的生活习惯,又不至于互相干扰。比如老人可能比较早睡、睡眠质量也比较差,但是年轻人比较喜欢熬夜,可能会有一些声音打扰到老人。那么老人房就用软包墙吸音,年轻人那边用硬质材料反射声音,中间过渡区加点流水声当白噪音。这样一来,年轻人享受夜间娱乐时,声音也不会传到老年人的区域,两边都舒服。
【新浪家居】:从专业角度讲,您觉得整装卫浴服务能帮业主解决哪些问题?您在为业主挑选整装卫浴服务时,有哪些选择标准?
【王博】:集成式卫浴方案通过全流程系统化管理,整合设计、选材与安装环节,有效规避传统装修中常见的尺寸偏差或风格不协调问题。
挑选标准主要有3点:首先关注核心品质,优选具备国家标准认证的耐用型材质(如抗污陶瓷、防锈五金);其次考察品牌售后体系,重点确认服务网点覆盖率和紧急问题响应时效,避免后期使用隐患;最后在基础功能达标后,可结合空间风格搭配智能模块(如恒温花洒、感应照明),既提升使用舒适度,又预留未来升级可能性。这种阶梯式筛选策略兼顾实用性与生活美学需求。
【新浪家居】:您和东鹏整装卫浴合作多久了?是什么契机让您选择与东鹏合作呢?
【王博】:我们合作了8年。东鹏卫浴价格适中,款式新颖,大多数客户可以接受。
【新浪家居】:东鹏的产品和服务中,有哪些方面让您十分认可?
【王博】:东鹏卫浴产品采用先进工艺,严格把控质量,设计融合人体工学与美学,提供多样化风格选择,服务体系从售前至售后都能比较全面地覆盖。他们的销售与客户沟通都很积极,售后服务也很及时。
【新浪家居】:如果让您选一个代表性的设计作品,您会选哪个?能给我们介绍一下吗?
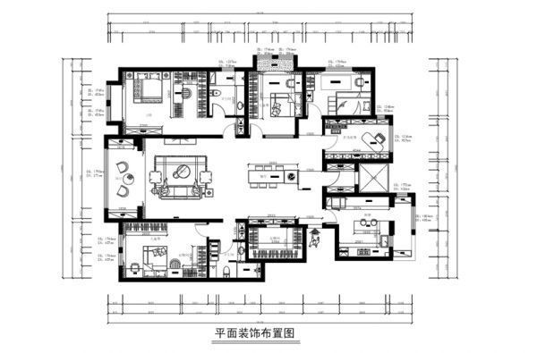
【王博】:我比较喜欢的是“暮色人间”。此案例户型是一个五居室,业主喜欢现代轻奢风格。业主是一对中年夫妻,家中一对老人,两个女儿,大女儿在上大学了,小女儿还在读小学。男主人需要在家办公,需要一个独立的书房。老人喜欢热闹,希望家中有个大餐桌,全家其乐融融。女主人喜欢全屋无主灯设计。考虑两个孩子生活作息不同,大女儿需要喜欢弹钢琴,需要一个多功能房。小女儿需要学习的环境,怕打扰喜欢安静。



户型较为方正,三面采光,采光优秀,极致通透,有个大阳台可以品茶休憩。有独立电梯间,也有楼梯间入户,十分便利。电梯上来,一进门,左右两侧各有一排通顶鞋帽柜,用来收纳日常一家人穿的鞋子。

往里走,正对一道长虹玻璃做的屏风用来隔断空间、保护隐私,把布局环境隔开,便于屋里人谈话、交流。隔断连接了一个可以容纳10人左右的餐岛一体台。餐岛一体的设计给人一种非常大气的感觉。不仅解放了厨房压力,同时一家人进餐,互动性强,增进家庭和乐氛围。以前的餐厅过大,有一部分空间浪费,现在隔出一间隐藏式衣帽间。

全屋吊顶加无主灯设计。客厅吊顶一圈双层石膏板做石膏线,拔高空间视觉高度。客厅选用无主灯摒弃了传统吊灯,使用磁吸轨道灯、筒灯、线性灯等辅助光源,使得客厅光线更加均匀,照明有层次感。



主卧嵌入式床头柜连衣柜设计,悬空梳妆台连高柜设计,半开放式衣帽间,方便拿取衣物,突显空间整体设计感与趣味性。柔和的浅色系基调作为空间的主色调,搭配无主灯设计烘托氛围,赋予空间典雅内敛的舒适氛围。房间各处细节充分得到了视觉的延伸。

全屋整理风格色调相呼应,极尽舒适与私密相结合,打造精英群体对品质的追求与向往。
——
物质生活的丰盈驱使着国民将目光投向精神层面的满足,家作为中国人心中的神圣港湾,对于每个人都有着独一i无二的意义。作为兼具实用功能和美学表达的学科,室内设计对人居空间的重要性不言而喻。随着社会审美的进步及对生活品质的追求,中国室内设计的需求与日俱增;而文化自信又让中国设计师萌发了多样化表达。
新时代需要新力量,“2025卓越设计青年”奖项的设立旨在发掘和表彰室内设计领域表现卓越的杰出青年设计师,为中国青年设计师搭建权威的交流平台,激发青年设计师的创造力,为增进中国设计力量添砖加瓦。
相关知识
客厅装修的常见错误 今后一定要避免!
客厅装修的误区,速度收好!
客厅装修的28个误区,赶紧收好!
大 开眼界INESA100寸激光客厅影院全国巡展启程
客厅装修的这28个误区,你造吗?
客厅装修隔断需注意什么?设计注意事项
客厅装修误区
18套风格客厅,找准你想要的再装修吧!
客厅装修应注意哪些呢?你知道吗?
如何把瘦长客厅从鸡肋变为实用空间