说 明
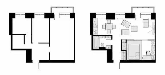
这套45平的房子,原本布局不太合理,空间利用率不高,屋主为了改善杂乱无章的生活,请设计师将45平的屋子布局成集客厅、卧室、厨房、卫浴间于一体的条理之家。如果您的烹饪风格不是煎炒辛辣,又可以接受卧室的玻璃门分隔方式,这套案例会是值得借鉴的难得精品。
本案在装修风格上,兼顾了北欧的简洁直接和日式的净雅节制,且在细节之处尽显设计师功力。



客厅
鉴于客厅的空间不足10平,所以选择了木质可移动的独立沙发,可根据情况移动位置。新布局利用了户型中最完整的一块长方区域,开放式地贯通了厨房、餐厅和起居室,使整体空间的实用性和视觉舒适度有很大提高。

卧室
玻璃门隔断为客厅和卧室进行了功能分区。玻璃的透光性正好弥补了卧室空间没有窗户的缺点。而榻榻米下的收纳抽屉很方便。

卧室的工作区
小小的卧室开辟出一个工作区,虽然只是一桌一椅,但很方便实用。


厨房
开放式的厨房没有放置油烟机,让空间看起来整洁不少。


卫浴间
相较而言,卫浴间空间比较大,而且利用得非常合理。尽量多地增加了收纳空间,外部加上推拉门的设计,有效防潮。

如果您觉得这篇文章有用,请分享给更多的朋友!~
装修范:为你的新房装修,提供实用参考
广告合作QQ:996813970
有范君提醒:点击文章末尾“阅读原文”免费领取四份装修设计与报价方案

相关知识
45㎡巧用隔断设计,难得精品!
客厅隔断设计常识技巧
客厅餐厅隔断设计如何设计_客厅餐厅隔断设计作品
客厅装修巧用客厅隔断设计 玻璃移门巧运用!
客厅与卧室隔断设计技巧
卧室隔断设计得好,单间变套间!
营造客厅穿透感 玻璃移门巧隔断设计
客厅装修巧用玻璃移动门隔断!
餐厅客厅隔断设计如何做
客厅餐厅隔断设计如何做_客厅餐厅隔断设计实例