
业主茜茜说:我不拘泥于一种风格,随意、自然、放松就好。于是,文化砖、原木、复古家具、订制花鸟壁纸、复古的色彩等等就被我们运用起来。美式家具也好,中式家具也好,工业风格也罢,喜欢的,就搭进来了,竟也和谐,舒适。
面积户型:143平四房
案例地址:华润.凤凰城依云府
设计师:马晓斐
入户花园的超大鞋柜,复古绿色油漆,沉稳、自然。






从入户望向客餐厅

宽大舒适的老虎椅、复古大红色角几



还有网购的装饰柜


小细节彰显生活品质。主卫现场制作的大理石洗漱台,网购的台上盆。


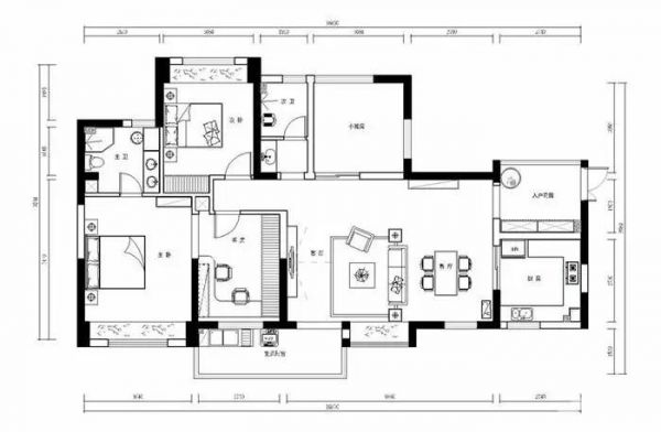
户型及设计图


欣赏完美图,可以把你喜欢和想提问的,通过写留言的方式提出来哟!

相关知识
【美图】谁家新燕啄春泥 自由混搭风
23张混搭客厅装修美图 北欧、日式成混搭常出现风格
23张混搭客厅装修美图 北欧、日式成混搭常出现风格
室内装饰 16张混搭客厅装修美图
19万装124平,个性自由混搭美居
混搭客厅装修效果图2016图片大全_混搭客厅装修效果图案例欣赏
客厅混搭装修风格如何装修_客厅混搭装修风格设计案例
80平混搭公寓,早春色彩已风情万种
【YASLAN】自由不将就 混搭北欧风打造理想的生活
四道口5号院150平混搭风格完美家装效果图