
▲ 建筑面积89平,总花费25万不到,进门是餐厅区,整体以白色墙面为基础,辅助黑色和灰色,配合木色的家具,极简流畅的线条感

▲ 墙面黑白几何图案的装饰画,配上黑色大吊灯

▲ 通铺地板,墙面全部留白,偶尔以装饰画、挂钟等点缀

▲ 从餐厅望向客厅方向,也可以看到客厅背后开放式的书房区

▲ 次卧做成开放式书房,让公共空间更加通透宽敞,必要的时候可以拉上隔断独立成临时客卧

▲ 所有的家具造型简约,舒适实用,个别小物用黄色蓝色跳脱点缀

▲ 电视背景不做任何造型和装饰

▲ 沙发背后是开放式书房,拉上帘子可以单独作为客卧

▲ 榻榻米设计增加了储物空间,也可以当床或者座榻,一物多用

▲ 一侧是整面墙的柜子,这个小房间承担了大量收纳功能

▲ 以吧台和客厅隔断

▲ 主卧也是极简的氛围

▲ 灰色的床头背景,一幅黑白装饰画,侧面是衣帽间的移门

▲ 灰色厨房,白色橱柜,线条简单流畅,嵌入式厨房电器

▲ 同厨房风格一致的简约卫生间

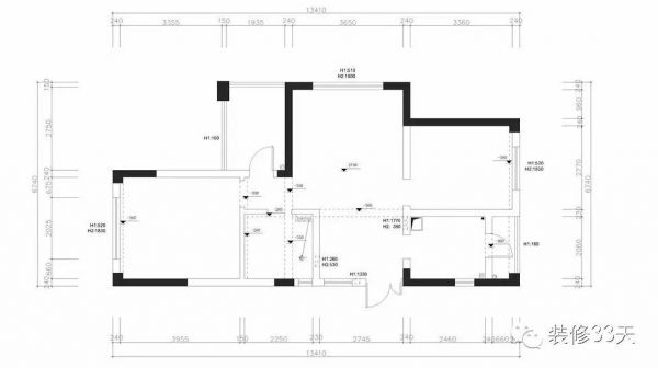
▲ 原始结构图

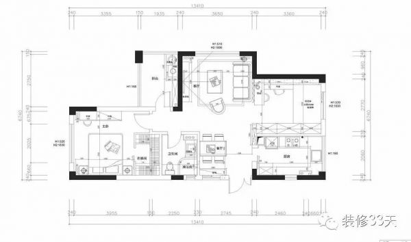
▲ 平面布置图
设计 | 陌上设计(杭州)
欢迎业主、设计师、装修公司投稿照片
公众号商务合作:king194316

相关知识
89平单身男的现代极简 耐看大方
89平现代简约两居室
89平米现代两居装修案例
89平米现代简约装修风格!
89平米现代风格装修案例
70平米型男的质感极简LOFT单身公寓
89平米两居室现代风格装修案例
89㎡现代简约 舒适、温馨、有品质感
89㎡家居装修现代风格
【现代简约】15万打造89平三居室,简单的装修也能色彩缤纷!