
在这里,我们将为您收集最具创意的设计,最好玩的样式,最时尚的家居,让我们一起构建美丽家园。【添加微信号:jia-etfzx,查看更多精彩内容】

▲ 又是一个入户无玄关的户型,用屏风做一个隔断,不会一进门就是客厅那么突兀

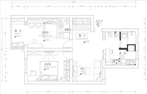
▲ 玄关左侧是卫生间和厨房,因为比较狭长,所以厨房做成了开放式,卫生间也分割成了干湿分离

▲ 为了增加客厅的视觉延展性,把主卧门做成隐形门,整个空间看上去不显得紧迫了

▲ 隐形门关上的样子,视觉上厅就向外延伸了一两米,因为是平行的两扇门,做成不同的样子一个隐形一个有门套,也使得空间不显得沉闷

▲ 小户型敞开式空间,有利于增强采光以及角落的极大化利用

▲ 远看是不是很巧妙!运用隐形门减少了空间的紧迫感,脑海中可以幻想一下如果是两扇白色的门框是怎么样的。


▲ 餐厅区域考虑做成卡座,为更充分利用空间,卡座后面45cm做成到顶大橱,桌子和书房门齐平,增加储物的同时保证餐厅的完整性

▲ 敲掉厨房与客厅的墙,做成开放性厨房,台面延伸至客厅形成吧台(可以两人吃饭,顺便看电视),从而在视觉上扩大客厅面积,同时增加采光

▲ 卫生间墙向里移动约30cm,干湿分离,同样扩大客厅面积,隔出吧台区域的行走区域


▲ 卫生间沐浴区域墙面向里移动约30cm,借给厨房一点面积放置冰箱


▲ 主卧墙保持开阔,不显得压抑,在床尾角落放置一架古筝就有一阵古色古香的感觉

▲ 书房兼次卧,因为这个房间联通阳台,空间上本来就显得大,因此在进门处隔出来一个步入式衣帽间正对门放一个坐卧两用床,另一面墙是双人书桌和书橱

▲ 书房隔出衣帽间,1.35的壁床和2m的双人书桌,刚好合理利用了每一寸的空间


▲ 阳台放置洗衣机和台盆,另一面靠墙做到顶大柜,同样为了不显压抑,大柜的上半部向里呈弧度缩进,打格子且起到装饰作用

▲屋主说: 房子小,所以越发每一寸空间都不能浪费,门后的这个全身镜也有玄关,镜子是可旋转的,打开来就是一个小柜子,里面放些领带皮带挂件什么的,节约了空间,看上去也一目了然(此处为书房一进门)

▲ 换个角度从阳台看书房进门处,正对的这面书柜旁的墙就步入式衣帽间的隔墙

▲屋主说: DIY超便宜衣帽间。在步入式衣帽间、主卧大衣柜和餐厅卡座后面的三个橱,都采用了搭框架+金属置物架的方法,步入式衣帽间和衣柜的做法稍有不同。本质上极大程度降低了衣柜的成本,又不影响美观,同时灵活多变可以根据自己需要搭配、改变,最重要的是完全环保,没有板式家具的污染,得到了身边朋友的好评。


▼戳“阅读原文”,抢“免费设计” 名额,齐家金牌设计师等着您!
相关知识
73㎡平米小宅装修的这么经典,邻居争相拜访
73平的小户型二居室,把次卧做成全屋榻榻米
北京城建上河湾 73平米简欧装修设计效果图
73平北欧两居室
婚房装修太漂亮,邻居争相来我家参观取经呢!
73平现代简约风格老房装修
清新小平米住宅装修 温馨雅致空间
73平北欧风格小户型装修案例
太神奇了,14平米弄堂老宅被装修成了4室1厅
设计案例 | 中铁汇苑 145 平米新古典风格中铁汇苑145平新古典装修效果图 (11)张