
自信热情如老李,学装修,爱设计,肯钻研!
为了外甥的新房布局能更完美,老李把方案几易其稿,一改再改,
功能布局,空间利用,都在运筹帷幄之中。
关于家装设计,老李是这么理解的:“除了用适当成本满足功能需要的同时,美观、风格、氛围也很重要,不过本人认为功能实用是第一位的。”
如果你也认同他的观点,不妨来欣赏下他的装修成果吧!
一、客厅

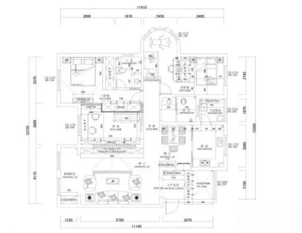
二、入户玄关
▲小小玄关也别有洞天呢:玄关+储藏室=一室多用!
关于玄关的设计,坛子里老李有篇帖子写的很详细,推荐一看。
三、客厅阳台
休闲阳台的风景也是极好的,凭栏远眺,沐浴着温暖的阳光,
爱人相伴,哪还有什么烦恼呢?


四、餐厅
一张推拉门,相隔的是中西两个美食空间,
一家人既能享受到中式美食,还能体验到西式DIY烘焙的乐趣。
餐桌另一边是冰箱和餐边柜的组合搭配,
烤箱、净水机和酒柜的完美嵌入,满足生活所需。
五、厨房
宽敞的厨房,窗外一览无余的是小区绿色风景,
即便是夫妻两人一同下厨,空间都绰绰有余~
六、客卫
七、主卧空间
有着女主人喜欢的大衣柜和梳妆台,
精心挑选的墙纸和窗帘颜色,遥相呼应。



八、客卧
风景独佳。
小编觉得全房窗帘和墙纸都搭配的十分和谐呢~

一室两用,柜子后方的空间,设计的更为巧妙哦!
▼用柜子隔出来空间——休闲室/儿童房,
摆上茶几是个难得的静室,等主人有了小baby后,这就成了儿童房了。

九、书房
主人是博士男+硕士女的搭配,装修前就说了,书房要大!大!大!
除了读书写字的工作区域,连锻炼身体的空间也是可以满足的哦~


十、主卫

相关知识
【美图】实用至上的140平美式三房
丰管路58号院140平欧式风格完美家装效果图
面积140平美式四居客厅欣赏图片
140㎡美式风三居,从细节中带来的舒心温暖
140平美式风格,低调奢华与美的享受~
【家居】明媚的气息,140平清新三居~美美哒!
亮点大有所在,140平美式婚房终于搞定!
精美92平米三居客厅美式实景图
140㎡温馨美式简约,华丽的气质!
美死了,140平大气欧式风堪比豪华别墅