客厅装修大全
菜单
首页 > 客厅资讯 > 现代风格装修案例

现代风格装修案例

客厅装修大全 2021-02-01 03:02
案例详情 这间面积68㎡的公寓,设计师用朴素的设计手法,打造出温暖而惬光线设定了空间的基本形式,揭示了纹理并营造了氛围。其他重要元素是简洁的体积,天然材料,清晰的物体几何轮廓,构图的自由度和灵活的氛围,利用自然光线,为室内带来通透明亮的视觉感受。在混乱的生活中,渴望找到一个和谐安宁的地方,这是我们每个项目背后的动力,重新思考空间的意义和每一个元素,在这里不会发现过多的装饰. 现代风格装修案例

精致的一居室小公寓,采用爱丁堡蓝作为点缀,柔软的布艺沙发居于客厅中央,背靠餐厅,温馨舒适

现代风格装修案例

主卧室床头两侧的壁灯造型独特,在装饰不多的空间里,算是一丝点缀。定制了桌板与衣柜相连,占用很少一部分空间,满足了女主人对梳妆台的需求。

现代风格装修案例

餐厅与开放式厨房共处一个空间,橱柜配色低调,餐桌的造型和颜色则更为浓重。窗前定制了吧台区域,可作为日常小酌,也可做办公区使用。

现代风格装修案例

卫生间的石材均采用白色大理石纹路,细腻的大理石在阳光的照射下更加柔和。柜体则采用深色木纹,与整体风格相搭配

现代风格装修案例

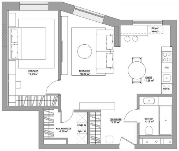
【户型图】 开放式布局, 以胡桃木与白色形成对比,蓝色沙发显得时尚优雅,在满足功能区需求后,也需要拥有设计的亮点, 以最简单的设计与生活和谐相融

相关知识

现代风格装修案例
112平米现代风格装修案例
100平米现代风格装修案例
130平米现代风格装修案例
59平米现代风格装修案例
61平米现代风格装修案例
89平米现代风格装修案例
78平米现代风格装修案例
客厅装修现代风格如何装修_客厅装修现代风格设计案例
97平米现代风格装修案例

网址: 现代风格装修案例 http://www.ketingzhuangxiu.com/news-view-id-55705.html
所属分类:行业动态